道路占用許可申請(道路法第32条)について
道路占用とは、道路(上空、地下を含む)に一定の工作物、物件又は施設を設け、道路を継続して使用することを指します。
工事用の足場、敷鉄板、仮囲いなどを道路に設置する場合には、道路法第32条に従い道路占用許可を受ける必要があります(「一般占用」参照)。
道路にガス管や上下水道管などを埋設する場合、電柱の設置、電線を架空する場合も、道路占用許可を受ける必要があります(「インフラ事業占用」参照)。
道路を占用する場合には、道路占用料がかかります。ただし、一定の要件を満たす物件で申し出があったときには、占用料を減免できる場合がありますのでご相談ください。
[注意事項]
許可を受けた占用物件は、道路利用者や第三者への事故を未然に防止する観点から、道路法第39条の8に基づき、道路占用者が適正に維持管理及び安全確認を行う義務があります。
占用更新の手続きの際に提出が必要な安全確認報告書に加え、日常から定期的に占用物件の維持管理を行ってください。
占用物件の維持管理義務に反し、道路利用者等へ損害を与える事態となった場合は、占用者にその責任が問われる場合があります。
一般占用について
一般占用として許可を受ける必要があるものは、次のとおりです。
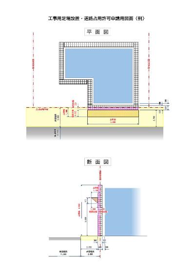
・建物工事のため設置する工事用足場、敷鉄板、仮囲いなどの工事用資材など
・個人の雨水排水管、町会管理の消雪用送配水管など道路下(地中)に埋設する管など
・町会や地域のお祭りで設置する屋台、テント、ステージなど
・宅地への出入りのために設置するグレーチング蓋(固定式)など
申請手続き
一般占用の申請手続きについては、次の資料をご参照ください。
申請手続きの流れについて (PDFファイル: 61.9KB)
許可申請書の様式
記載例(道路占用許可申請書) (PDFファイル: 163.6KB)
なお、申請書には次の資料を添付し1部提出してください。
1.道路占用許可申請書
2.道路占用料減免申請書(次項「占用料減免について」参照)
3.位置図(道路や目標物が記載され位置が特定できるもの)
4.平面図(道路の占用面積が明示されているもの)
5.立面図
6.構造図
7.舗装復旧図(舗装工事を伴う場合のみ)
※必要に応じて、その他の書類の提出を求める場合があります。
占用料の減免
道路占用料減免申請書 (Excelファイル: 11.3KB)
記載例(道路占用料減免申請書) (PDFファイル: 43.8KB)
金沢市電子申請サービス
原状回復届け、権利譲渡(承継)申請について
占用物件を撤去した場合又は権利を譲渡した場合は、道路管理課に連絡のうえ、次の書類を提出してください。
・原状回復届(PDFファイル:23KB)※原状回復が確認できる写真含む
・原状回復届(Excelファイル:12.1KB) ※原状回復が確認できる写真含む
インフラ事業占用について
インフラ(電気・通信・ガス・上下水道)事業において占用許可を受ける必要があるものは、次のとおりです。
・西日本電信電話株式会社、北陸電力株式会社、その他通信事業者:電柱、電線、埋設ケーブルほか
・金沢エナジー:ガス管路、付属施設及び引込管ほか
・金沢市企業局:上下水道の管路、付属施設及び引込管ほか
申請手続き
インフラ事業の道路占用申請及び道路占用料減免申請、道路占用廃止届は、電子申請のみの受付となります。以下から金沢市電子申請サービスへ移動できます。
(注意)添付ファイルに関しては10メガバイトまでです。
◇道路占用許可申請・道路占用料減免申請
- 道路占用許可申請・道路占用料減免申請(電柱等/西日本電信電話株式会社)
- 道路占用許可申請・道路占用料減免申請(電柱等/北陸電力株式会社)
- 道路占用許可申請・道路占用料減免申請(電柱等/その他通信事業者)
- 道路占用許可申請・道路占用料減免申請(ガス/金沢エナジー)
- 道路占用許可申請・道路占用料減免申請(水道・下水道/公営企業)
◇道路占用廃止届
参考/道路使用許可申請書について
道路で通行に制限をかける行為(通行止め、車線減少など)を行う場合、道路交通法 77 条のもと管轄警察署の使用許可申請が必要です。この際、所轄警察署は、申請者に対して、道路管理者の確認を受けることを指示する場合があります。そのときには、申請者は道路管理課へ「道路使用許可申請書」を3部持参します。道路管理課はこれを確認し、同申請書に確認印を押印ののち、1部を控えとし、申請者へ2部返却します。




音声読み上げ・ルビふり
